Knox Garden
info
info
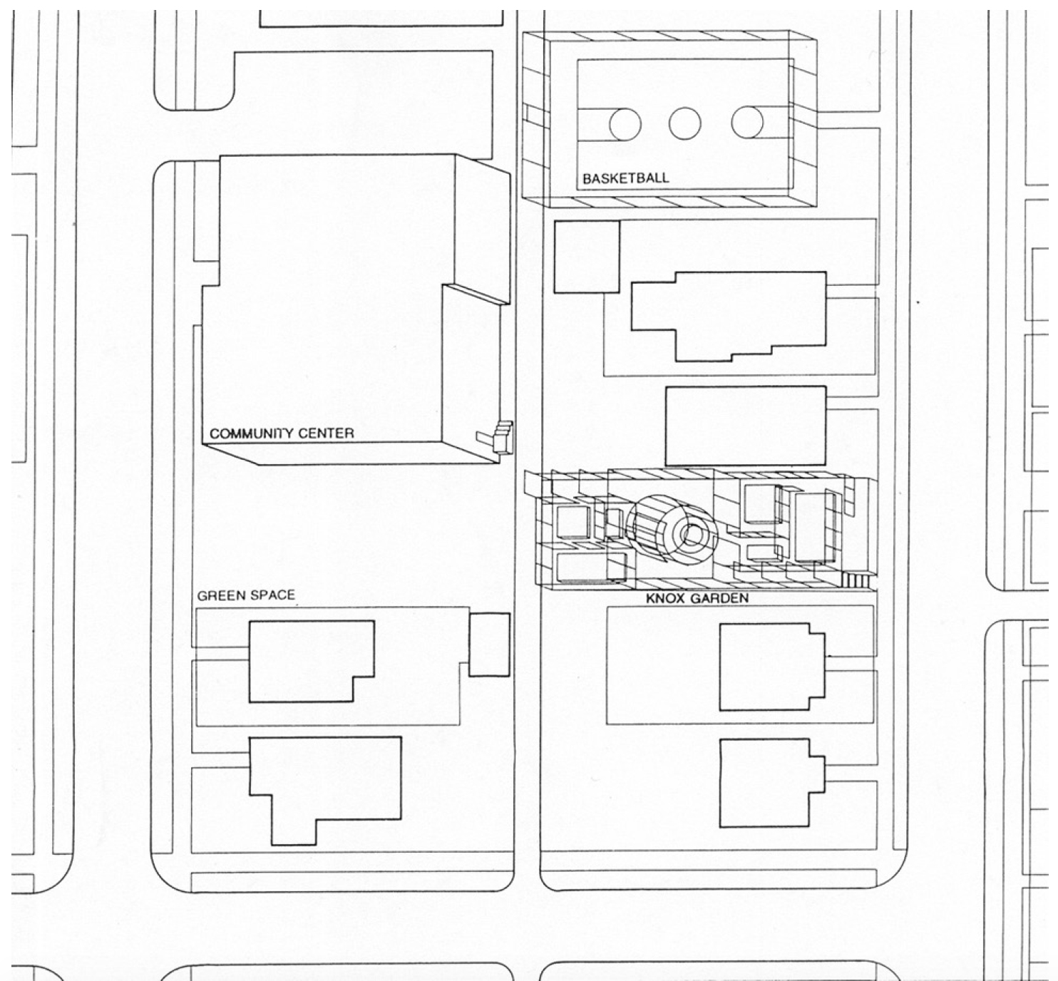
Built on a tax-forfeited lot, this urban garden is in a transitional neighborhood of Minneapolis where fenced-in yards and graffiti are forms of "familiar" territorial marking. Knox Garden marks its territory with multiple transparent enclosures defined by overlapping layers of differing size and color chain-link. Functioning all year round, the garden is used for both education and recreation; the project was constructed with cast-off materials and built with volunteer labor. Two end rooms are distinctly different in color and vegetation; one is warm and the other is cool. An unfurling plane of black mesh opens into the cylindrical space at the center where a serpentine stonewall encircles an apple tree.
Location: 
Minneapolis, MN
Year:
-
Design Team:
Raveevarn Choksombatchai, in collaboration with Ralph Nelson
Honors &
Exhibitions:
1996 Progressive Architecture Citation Award

1995 American Institute of Architecture Honor Award, Minnesota Chapter

California College of Art and Craft, San Francisco, 1996 Progressive Architecture Awards Projects, a group exhibit, Organized and curated by 2AES/Center for Critical Architecture. 1997 
Press
Dwell, Vol 2, June 2002

Design Culture Now, The First National Design Triennial Exhibition Catalog, The Cooper Hewitt National Design Museum, New York, Princeton Architectural Press, 2000

Architecture, "Mending Fences," May, 1997

Architecture, P/A Award Issue, May, 1996

Architecture Minnesota, "Urban Stories," January/February 1996

Minneapolis Star Tribune, Design Award Review, December 1, 1996