Cut & Fold
info
info
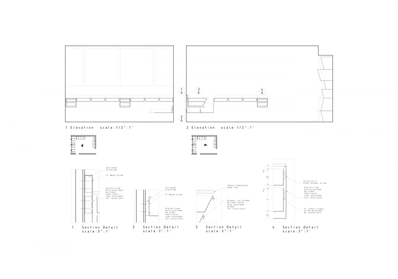
In a 1950’s modern house, an existing study room is transformed into a private working library for two. Conceptually, two distinct surfaces either run along or perpendicular to the two opposing wall while creating spatial volume with multiple cuts and folds.

In the design of the bookshelves, the same pattern of sheet metal cut is designed to achieve formal and spatial variation depending on the direction of the fold. Color is used to give clues to the surface folding assembly, to trace the method of fabrication, and to project possible surface operation. Folds give material lateral and sheer strength, while organizing spatial flow for storage and efficient work surface. Even though the design is for specific function to be installed on the specific site, it has been both clients and our intentions to conceptualize the system of modules in design, fabrication, and installation methods for the ease of transportability and to achieve the aesthetics of accumulative result.
Location: 
Berkeley, CA
Installation Team:
Raveevarn Choksombatchai, Jeremy Steiner, Will Oren
Design Team:
Raveevarn Choksombatchai, Emily Gosack
Paint work:
Oscar Auto Body Work
Metal Fabrication:
Raveevarn Choksombatchai, Will Oren, Jeremy Steiner
Honors and Exhibitions: 
Design Honor Award in Interior Architecture for Cut+Fold, AIA SF Chapter—2007

Cut + Fold exhibited at AIASF Design Awards Exhibition, AIA, San Francisco—2007